• Zeelaan 202, 8660 De Panne
  • +32(0)58 42 12 39

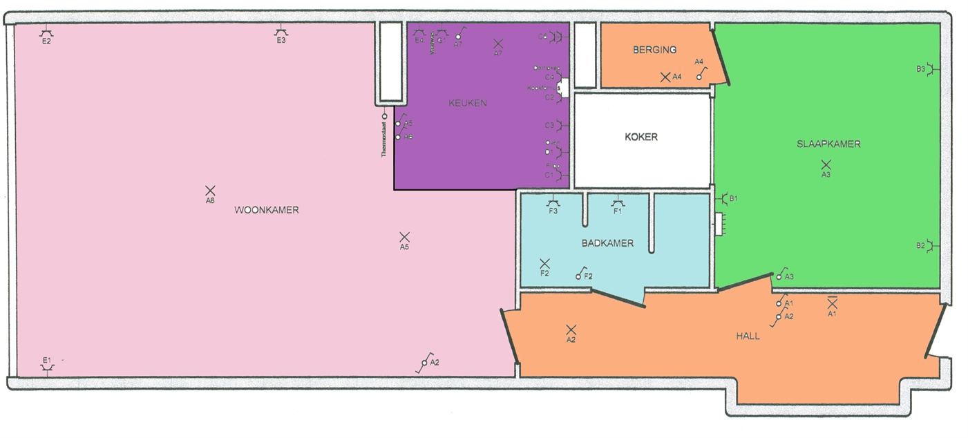
Ferien Wohnung mit 1 Schlafzimmer.

Agence Mulier
Cookie-Richtlinie

Logo Agence Mulier
Diese Website verwendet Cookies, um Ihr Surferlebnis zu verbessern. Durch die weitere Nutzung dieser Website stimmen Sie der Platzierung von:
  • Funktionale Cookies erforderlich damit Sie die Ergebnisse reibungslos suchen und anzeigen können,
  • analytische Cookies (Google Analytics) um die allgemeine Website-Nutzung zu messen.
  • Social-Media-Cookies damit Sie den Inhalt dieser Website in sozialen Medien teilen können.
Mehr Informationen ? Datenschutz-Bestimmungen - Datenschutz - Urheberrecht

Warum vermieten

Warum verkaufen