• Zeelaan 202, 8660 De Panne
  • +32(0)58 42 12 39

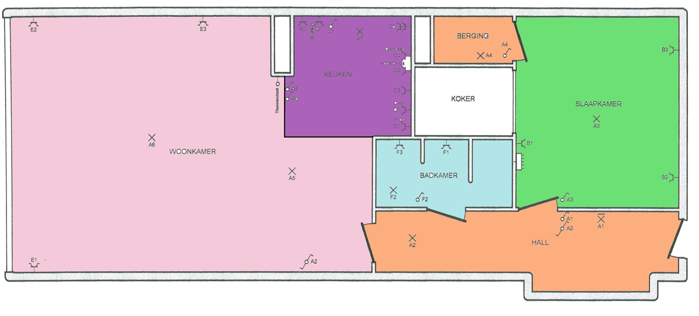
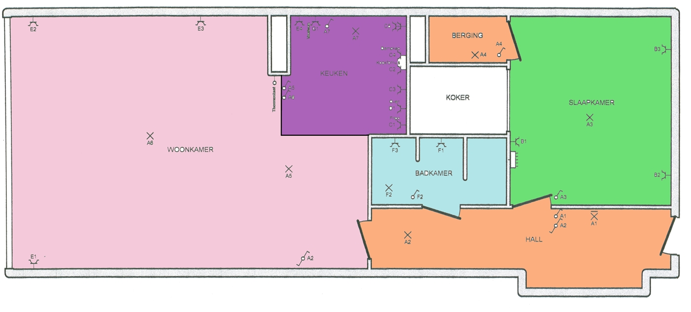
Appartement met 1 slaapkamer

Agence Mulier Cookiebeleid

Logo Agence Mulier
Deze website gebruikt cookies om uw gebruikerservaring te optimaliseren. Verder gaan op deze website betekent dat u akkoord gaat met het plaatsen van:
  • Noodzakelijke functionele cookies zodat u vlot kan zoeken en resultaten kan bekijken,
  • Analyse-performantie cookies (Google Analytics) waarmee het algemeen gebruik van de website kan gemeten worden.
  • Sociale Media cookies om de inhoud van deze website te kunnen delen op Sociale media.
Meer info ? Privacybeleid - Bescherming Persoonlijke Levenssfeer - Copyright

Waarom Verhuren

Waarom Verkopen